
Как и для чего создается обмерный план в Архикаде
Создание интерьера в Архикаде – это сложный и многогранный процесс, который начинается с точных замеров помещения. Один из ключевых этапов подготовки к проектированию – составление обмерного плана. В программе ArchiCAD он помогает дизайнерам интерьеров структурировать данные о помещении и заложить прочный фундамент для будущих проектных решений. В этой статье мы разберём, что такое обмерный план, как его создать в Архикаде и для чего он нужен.
Что такое обмерный план?
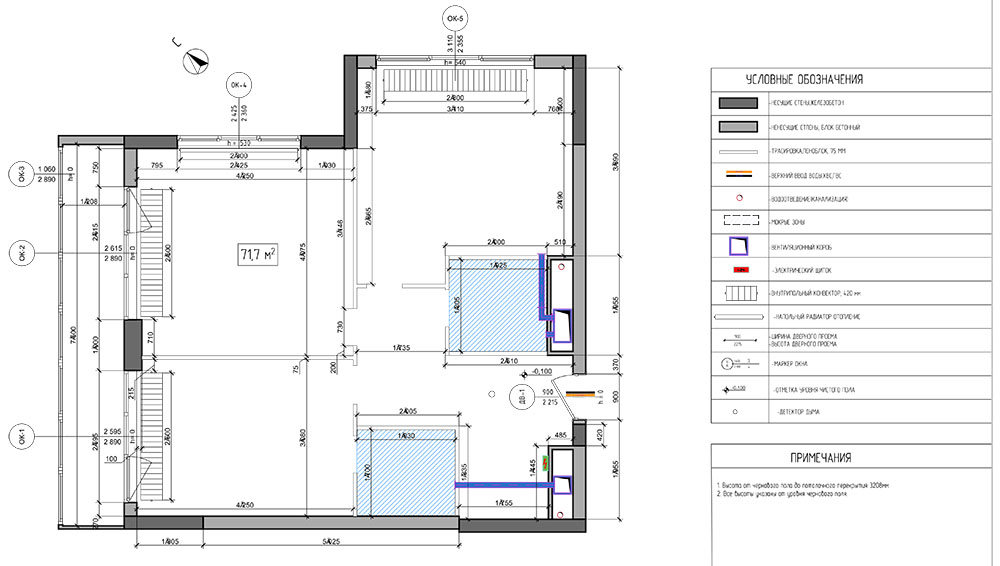
Обмерный план – это чертёж, на котором отражены все размеры и особенности помещения: длина и ширина стен, высота потолков, расположение дверных и оконных проёмов, колонн, ниш и других конструктивных элементов. Этот план служит основой для дальнейшего проектирования – без него невозможно приступить к созданию полноценного дизайн-проекта.
Зачем нужен обмерный план?
-
Точность проекта
Обмерный план позволяет учитывать реальные габариты помещения и избегать ошибок на этапе проектирования. Дизайнер сможет корректно расставить мебель, спланировать размещение встроенных конструкций и рассчитать необходимые материалы. -
Оптимизация пространства
На основе обмерного плана можно грамотно организовать каждый метр площади, особенно в небольших помещениях. -
Координация с подрядчиками
Такой план нужен не только дизайнеру, но и строителям, сантехникам и другим специалистам, которые будут работать над реализацией проекта.
Из чего состоит обмерный план?
Правильно выполненный обмерный план содержит следующие элементы:
На чертеже:
- Стены без штукатурки – с указанием точных размеров.
- Размеры стен, позволяющие построить весь план помещения, включая толщину стен.
- Размеры и высоты проёмов – дверных и оконных.
- Окна с маркировкой – включая высоту от пола до подоконника и размеры оконного проёма (ширина и высота).
- Мокрые зоны, обозначенные штриховкой и снабжённые габаритными размерами.
- Радиаторы отопления – с точным местоположением.
- Стояки водоснабжения и канализации.
- Вентиляционные шахты.
- Отметка уровня пола – указывается в ключевых точках помещения.
- Общая площадь помещения, отмеченная в центре чертежа.
- Электрический щиток – с указанием места его расположения.
- Направление севера, которое поможет точно привязать проект к реальному пространству.
Условные обозначения:
- Несущие стены.
- Межкомнатные перегородки или трассировка.
- Стояки канализации, ХВС и ГВС (холодное и горячее водоснабжение).
- Вентиляционные шахты.
- Электрический щиток.
- Мокрые зоны (обозначенные штриховкой).
- Отметка уровня пола.
- Маркировка окон (с указанием размеров).
- Радиаторы отопления.
Примечания:
- Высота от чернового пола до потолочного перекрытия – для точного расчёта высоты помещения.
- Высота от чистового пола до потолочного перекрытия – необходима для корректного размещения дверных и оконных конструкций, светильников и другого оборудования.
Как создать обмерный план в Архикаде?
ArchiCAD – это мощный инструмент для создания архитектурных чертежей и 3D-моделей. С его помощью можно быстро и эффективно создать обмерный план, следуя этим шагам:
-
Настройка проекта
- Откройте ArchiCAD и создайте новый проект.
- Установите масштаб чертежа и высоту этажей в соответствии с замерами.
-
Построение стен
- Включите инструмент «Стена» и постройте контуры помещения согласно реальным замерам.
- Задайте толщину стен и точно расположите углы.
-
Добавление проёмов
- Используйте инструменты «Дверь» и «Окно» для размещения проёмов и укажите точные размеры.
-
Отображение конструктивных элементов
- Если в помещении есть колонны, ниши, балки или вентиляционные шахты, добавьте их на план, используя стандартные инструменты или создавая элементы вручную.
-
Проставление размеров
- Включите инструмент «Размерная линия» и отметьте ключевые размеры: расстояние между стенами, высоту потолков и проёмов.
-
Создание легенды и обозначений
- Добавьте условные обозначения и легенду, чтобы чертёж был максимально информативным.
-
Финальная проверка и экспорт
- Проверьте точность всех замеров и сохраните проект. Вы можете экспортировать обмерный план в PDF или DWG для передачи другим специалистам.
Заключение
Обмерный план – это важный этап проектирования, который закладывает основу для всех дальнейших дизайнерских решений. В ArchiCAD создание обмерного плана становится максимально простым и точным. Чем качественнее выполнен этот чертёж, тем меньше проблем возникнет на следующих этапах проектирования и реализации проекта.